Скажите, пожалуйста, что Вы с Лиги Квартир
Описание
Дайте вашей семье лучшее!
Новая квартира с автономным отоплением, можно приступать к ремонту
Ищете квартиру в сданном новострое с автономным отоплением?
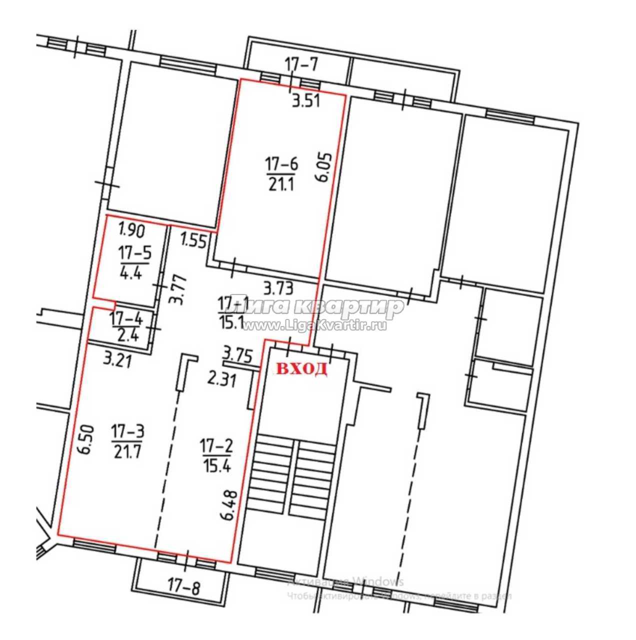
Продается просторная 2-комнатная квартира общей площадью 80 кв.м + балкон на 5/5 этаже.
Квартира расположена в доме новой постройки (2019-2020г), в ЖК "Castle Houses" (в пер. "Замковые дома").
Это клубный дом с огороженной и охраняемой территорией, с закрытым двориком, детской площадкой и зоной отдыха.
Дом находится по адресу ул. Аэрофлотская 5а, в Центральном районе г. Симферополя.
Это экологически чистое место, здесь всегда зелено и тихо.
Конструктив здания монолитно-каркасный, заполнение стен из газоблоков, дом очень теплый.
Строение имеет интересную и необычную для Симферополя архитектуру и окрас фасадов.
Современная планировка с большой кухней-гостиной 37,1 кв. м с выходом на балкон
(ее можно разделить и выделить изолированную спальню 15,4 кв.м), вторая спальня - 21,1 кв. м.
Санузел раздельный - 2,4+4,4 кв. м. Прихожая 15,1 кв.м.
Большие панорамные окна пропускают в дом много света, что создает особенную атмосферу и уют.
Высокие потолки - 3 метра.
Черновая отделка, радиаторы, счетчики и 2х-контурный газовый котел.
Огромным плюсом жилья является наличие автономного газового отопления,
которое позволит создать комфортную температуру в помещении и сэкономит расходы.
Дом обслуживает свой кооператив.
Рядом с домом организована наземная парковка.
В пешей доступности остановка общественного транспорта, магазины,
рядом детский сад "Теремок", #89, общеобразовательная школа 38,
объекты торговли и сервиса, парк отдыха, рынок и многое другое.
Дом расположен в непосредственной близости к центру города (10-15 минут).
Еще одним из бонусов на сегодняшний день - круглосуточная подача воды, без отключений!
При покупке можно воспользоваться ипотекой.
Приезжайте на просмотр и вы будете очарованы!
Не откладывайте свой звонок на завтра, позвоните сейчас!
2-комнатная квартира в продажу
- Количество комнат: 2
- Этаж: 5 из 5
- Санузел: Раздельный
- Балкон/Лоджия: 1
Цена и условия сделки
- Цена: 5 676 000 ₽
- Цена за м²: 70 950 ₽
- Ипотека: да
- Аккаунт: Агент
Площадь
- Общая площадь: 80 м²
- Жилая площадь: 36.5 м²
- Площадь кухни: 21.7 м²
- Дата публикации: 16 окт 2017
- Дата обновления: 15 июн 2021
- id объявления: 5416
Информация о доме
- Адрес: Аэрофлотская улица, 5А
- Тип здания: Монолитный
- Количество этажей: 5
Дополнительная информация





