Скажите, пожалуйста, что Вы с Лиги Квартир
Описание
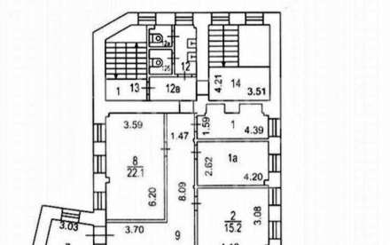
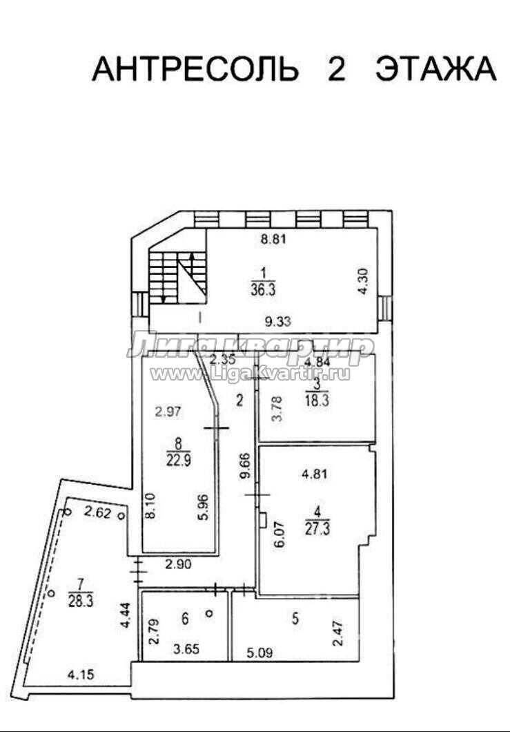
Лот №350567 Предложение от Собственника! Предлагаем в аренду отдельно стоящее здание 700 кв.м. в шаговой доступности от станции метро Марксистская, Таганская. Здание имеет три входа, отдельных вход в цокольный этаж, высота потолков 3м., вентиляция, кондиционирование, все коммуникации централизованные, гор. вода - бойлеры, мощность 150 кВт, есть возможность для летней веранды, парковка стихийная, арендные каникулы. Ранее в здании находилась частная клиника, кабинетная планировка, большое количество мокрых точек.
Стоимость аренды: 20571 руб/м2/год (1199975 руб в месяц) УСН. В цену не включено: затраты на электричество, коммунальные расходы, уборка.
Чтобы получить ПОДРОБНУЮ ПРЕЗЕНТАЦИЮ С ПЛАНИРОВКОЙ И ФОТОГРАФИЯМИ, звоните или отправьте свой email и номер телефона в сообщении на портале. Высылаем в течение 15 минут по запросу!
? Конт. лицо: Наталья Дмитриевна, доб. 216, ЛОТ №350567
Помещение свободного назначения в аренду
- Этаж: -1 из 3
Цена и условия сделки
- Цена: 1 199 800 ₽
- Налог: НДС включён
Площадь
- Помещение: Свободно
- Дата публикации: 07 апр 2020
- Дата обновления: 14 сен 2021
- id объявления: 17062
Информация о здании
- Адрес: Товарищеский пер, 34
- Количество этажей: 3
Дополнительная информация





