Скажите, пожалуйста, что Вы с Лиги Квартир
Описание
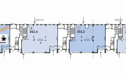
Лот №380344 Предложение от Собственника! К аренде предлагаются помещения свободного назначения, расположенные на первом этаже жилого комплекса Резиденция Композиторов. Помещения имеют площадь 355,2 и 363,4 кв.м. Каждое имеет несколько отдельных входных групп, как на улицу, так и во внутреннею часть ЖК. В каждом помещении имеются мокрые точки. Высота потолка 4 м. Остекление витринное. Подходит под торговую деятельность, общепит, офис, шоурум.
Стоимость аренды: 22000 руб/м2/год включая НДС.
Чтобы получить ПОДРОБНУЮ ПРЕЗЕНТАЦИЮ С ПЛАНИРОВКОЙ И ФОТОГРАФИЯМИ, звоните или отправьте свой email и номер телефона в сообщении на портале. Высылаем в течение 15 минут по запросу!
? Конт. лицо: Давид Русланович, доб. 309, ЛОТ №380344
Помещение свободного назначения в аренду
- Этаж: 1 из 15
Цена и условия сделки
- Цена: 665 379 ₽
- Налог: НДС включён
Площадь
- Помещение: Свободно
- Дата публикации: 13 мар 2017
- Дата обновления: 10 мая 2021
- id объявления: 9518
Информация о здании
- Адрес: Павелецкая наб, 6А
- Количество этажей: 15
Дополнительная информация





