Скажите, пожалуйста, что Вы с Лиги Квартир
Описание
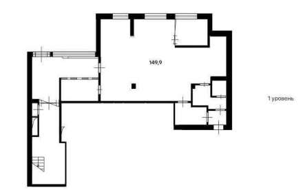
Лот №406793 Предложение от Собственника! Предлагаем готовый арендный бизнес, с окупаемостью порядка 10 лет. ГАП - 18млн. 761тыс. Двухуровневое помещение 362.3 кв. м. 1 этаж - 149.9, 2 этаж - 212.4 кв. м. Арендатор - премиум отделение Citi bank Citigold (более 15 лет). Заключен договор аренды до апреля 2025 года, индексация 7% + коммунальные и эксплуатационные расходы (УК) оплачивает арендатор. Все современные коммуникации. Вблизи ЖК располагаются усадьба Трубецких, являющейся памятником культурного наследия, Фрунзенская набережная и Нескучный Сад. А так же престижные жилые комплексы и клубные дома.
В цену включено: эксплуатационные расходы. В цену не включено: затраты на электричество, коммунальные расходы, уборка.
Чтобы получить ПОДРОБНУЮ ПРЕЗЕНТАЦИЮ С ПЛАНИРОВКОЙ И ФОТОГРАФИЯМИ, звоните или отправьте свой email и номер телефона в сообщении на портале. Высылаем в течение 15 минут по запросу!
? Конт. лицо: Александр Александрович, доб. 312, ЛОТ №406793
Помещение свободного назначения в продажу
- Этаж: 1 из 18
Цена и условия сделки
- Цена: 217 380 000 ₽
- Налог: НДС включён
- Аккаунт: Агент
Площадь
- Помещение: Свободно
- Дата публикации: 25 мая 2021
- Дата обновления: 30 авг 2021
- id объявления: 30353
Информация о здании
- Адрес: Комсомольский пр-кт, 32
- Количество этажей: 18
Дополнительная информация





