Скажите, пожалуйста, что Вы с Лиги Квартир
Описание
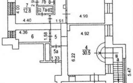
Лот №395782 Предложение от Собственника! Продается помещение свободного назначения площадью 200м2. Исторический центр Москвы. Шаговая доступность от метро Чеховская. Помещение расположено в цокольном этаже жилого дома. Имеет один отдельный вход с улицы и два запасных через МОП. Высота потолков - 3,35м. В помещении выполнен качественный ремонт, установлена система кондиционирования. Электричество - 15 кВт. 5 мокрых точек. В собственности более 5 лет.
Чтобы получить ПОДРОБНУЮ ПРЕЗЕНТАЦИЮ С ПЛАНИРОВКОЙ И ФОТОГРАФИЯМИ, звоните или отправьте свой email и номер телефона в сообщении на портале. Высылаем в течение 15 минут по запросу!
? Конт. лицо: Олег Сергеевич, доб. 314, ЛОТ №395782
Помещение свободного назначения в продажу
- Этаж: -1 из 5
Цена и условия сделки
- Цена: 58 000 000 ₽
- Налог: НДС включён
- Аккаунт: Агент
Площадь
- Помещение: Свободно
- Дата публикации: 15 фев 2021
- Дата обновления: 29 июл 2021
- id объявления: 26447
Информация о здании
- Адрес: Большая Дмитровка улица, 20
- Количество этажей: 5
Дополнительная информация





