Скажите, пожалуйста, что Вы с Лиги Квартир
Описание
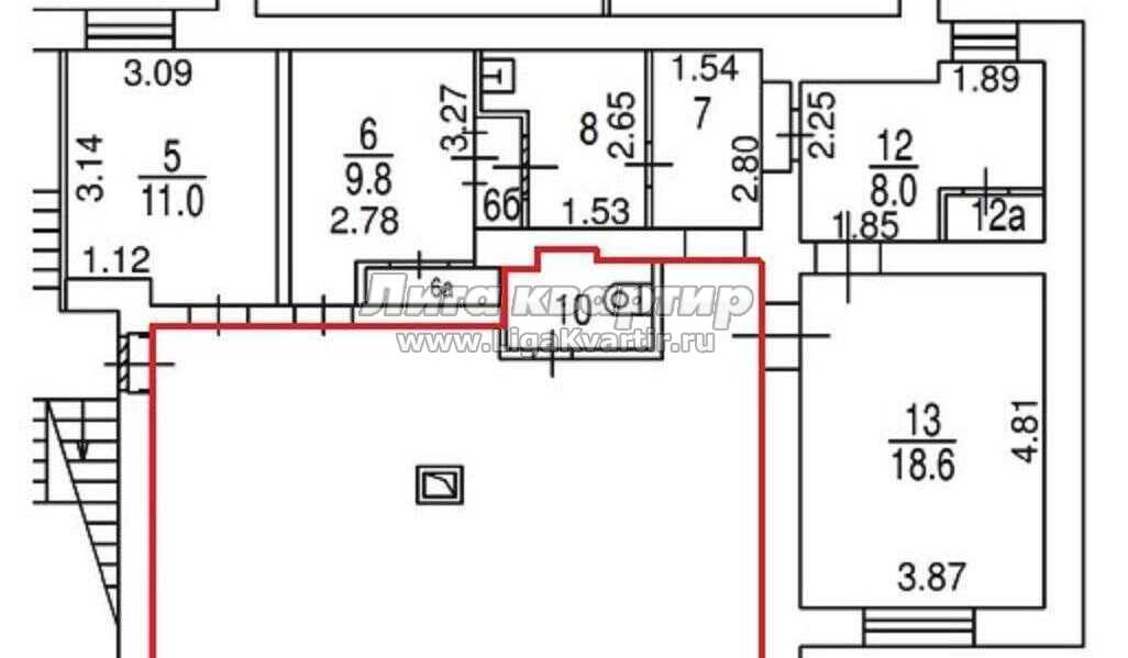
Лот №382024 Предложение от Собственника! Предлагается в аренду помещение свободного назначения площадью 66.4 м2 на 1-ом этаже 7-этажного кирпичного жилого дома в 9 мин. пешком от м. Улица 1905 года. Первая линия, интенсивные пешеходный и автомобильный трафик, место для вывески на фасаде, парковка перед помещением. Открытая планировка, отдельный вход с улицы, высота потолков 2.7 м, эл. мощность по запросу арендатора. Подойдёт под аптеку, магазин, оптику, турагентство, мед. анализы, пункт выдачи, кофейню, цветы, салон красоты и др.
Стоимость аренды: 45180.72 руб/м2/год (248494 руб в месяц) УСН. В цену не включено: затраты на электричество, коммунальные расходы, уборка, эксплуатационные расходы.
Чтобы получить ПОДРОБНУЮ ПРЕЗЕНТАЦИЮ С ПЛАНИРОВКОЙ И ФОТОГРАФИЯМИ, звоните или отправьте свой email и номер телефона в сообщении на портале. Высылаем в течение 15 минут по запросу!
? Конт. лицо: Сергей Есин, доб. 307, ЛОТ №382024
Помещение свободного назначения в аренду
- Этаж: 1 из 7
Цена и условия сделки
- Цена: 248 490 ₽
- Налог: НДС включён
Площадь
- Помещение: Свободно
- Дата публикации: 19 мая 2021
- Дата обновления: 04 июл 2021
- id объявления: 11661
Информация о здании
- Адрес: 1905 года улица
- Количество этажей: 7
Дополнительная информация





