Скажите, пожалуйста, что Вы с Лиги Квартир
Описание
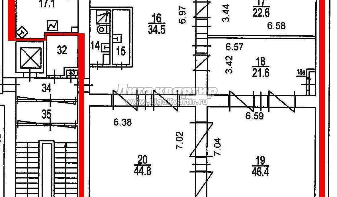
Лот №392300 Предложение от Собственника! Предлагается в аренду офис 195 м.кв в историческом центре Москвы .Столешников пер. 14. Соседство с Элитными Домами Моды Prada, Dior, Louis Vuitton гарантирует престиж и статус вашей компании. Из окон офиса открывается чудесный вид на старинную пешеходную улочку где прогуливаются модники и модницы столицы , а просторные и светлые кабинеты создают прекрасную атмосферу делового и творческого пространства. В офисе есть кухня, туалет, душевая комната и несколько кабинетов. Показ в день обращения.
Стоимость аренды: 42500 руб/м2/год (690625 руб в месяц) включая НДС. В цену включено: затраты на электричество, коммунальные расходы, уборка, эксплуатационные расходы.
Чтобы получить ПОДРОБНУЮ ПРЕЗЕНТАЦИЮ С ПЛАНИРОВКОЙ И ФОТОГРАФИЯМИ, звоните или отправьте свой email и номер телефона в сообщении на портале. Высылаем в течение 15 минут по запросу!
? Конт. лицо: Никита Вадимович, доб. 215, ЛОТ №392300
Офис в аренду
- Этаж: 2 из 5
Цена и условия сделки
- Цена: 690 690 ₽
- Налог: НДС включён
Площадь
- Помещение: Свободно
- Дата публикации: 19 мая 2021
- Дата обновления: 04 июл 2021
- id объявления: 22085
Информация о здании
- Адрес: Столешников пер, 14
- Количество этажей: 5
Дополнительная информация





