Скажите, пожалуйста, что Вы с Лиги Квартир
Описание
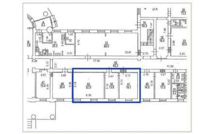
Лот №382464 Предложение от Собственника! В аренду предлагается офис на 1-м этаже, площадью 65,8 кв.м. Помещение функциональной планировки, состоит из 3-х кабинетов. Светлое , чистое приятное, и энергетически заряжено для работы. Санузлы расположены на этаже. Предоставление услуг провайдеров на ваш выбор: "Сотел", "Вымпелком", "Сити Телеком". Здание расположено на огороженной, охраняемой территории, со своей парковкой. на первом этаже расположено кафе с вкусным и разнообразным меню.
Стоимость аренды: 17500 руб/м2/год (96250 руб в месяц) УСН. В цену включено: затраты на электричество, коммунальные расходы, эксплуатационные расходы. В цену не включено: уборка.
Чтобы получить ПОДРОБНУЮ ПРЕЗЕНТАЦИЮ С ПЛАНИРОВКОЙ И ФОТОГРАФИЯМИ, звоните или отправьте свой email и номер телефона в сообщении на портале. Высылаем в течение 15 минут по запросу!
? Конт. лицо: Оксана Григорьевна, доб. 179, ЛОТ №382464
Офис в аренду
- Этаж: 1 из 4
Цена и условия сделки
- Цена: 96 228 ₽
- Налог: НДС включён
Площадь
- Помещение: Свободно
- Дата публикации: 21 июн 2021
- Дата обновления: 20 июл 2021
- id объявления: 25186
Информация о здании
- Адрес: Габричевского улица
- Количество этажей: 4
Дополнительная информация





