Скажите, пожалуйста, что Вы с Лиги Квартир
Описание
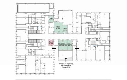
Лот №355941 Предложение от Собственника! К покупке предлагается офисные помещения в строящемся бизнес центре Класса А Stone Towers, расположенном на земельном участке вл. 19 по улице Бумажный проезд. Проект застройки подразумевает масштабное строительство в течении следующих 3 лет. Назначенный срок ввода в эксплуатацию последней очереди БЦ середина 2024 года. Проект представляет собой комплекс из 4 отдельных башен, расположенных в один ряд. Этажность башен варьируется от 9 до 23 этажей. На территории комплекса планируется создать особую эко зону, со древесными насаждениями и зонами отдыха, предоставляя возможность арендаторам офиса и их посетителям больше пространства для встреч и продуктивного ведения переговоров. Каждая башня также получит доступ к собственной парковочной зоне, расположенной преимущественно на подземных этажах комплекса.
В данный момент предлагаем к рассмотрению площади свободного и торгового назначения расположенные на первых 3 этажах башни В. Имеются как общие входные группы через первую линию, так и отдельные входы для ряда помещений. Дополнительно имеется возможность пользования лифтовой группы для доступа к офисной части и подземному паркингу. Имеется возможность подвода мокрых точек к помещениям.
Чтобы получить ПОДРОБНУЮ ПРЕЗЕНТАЦИЮ С ПЛАНИРОВКОЙ И ФОТОГРАФИЯМИ, звоните или отправьте свой email и номер телефона в сообщении на портале. Высылаем в течение 15 минут по запросу!
? Конт. лицо: Давид Русланович, доб. 309, ЛОТ №355941
Офис в продажу
- Этаж: 2 из 23
Цена и условия сделки
- Цена: 28 330 500 ₽
- Налог: НДС включён
- Аккаунт: Агент
Площадь
- Помещение: Свободно
- Дата публикации: 15 фев 2021
- Дата обновления: 06 апр 2021
- id объявления: 7819
Информация о здании
- Адрес: Бумажный проезд, 19
- Количество этажей: 23
Дополнительная информация





