Скажите, пожалуйста, что Вы с Лиги Квартир
Описание
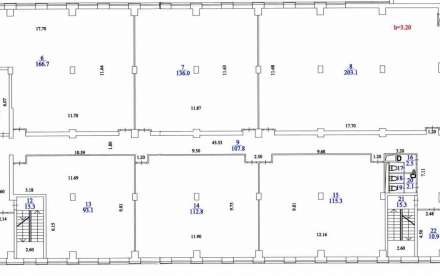
Лот №270163 К продаже предлагается офисный блок 1064 кв.м., расположенный на 3 этаже бизнес центра с качественным ремонтом. Помещение кабинетной планировки, сан/узлы в блоке. В 3 минутах ходьбы от м. Ленинский проспект. В 2010 г в здании был выполнен капремонт с заменой всех инженерных коммуникаций. Часть площадей сдана в аренду на краткосрочных условиях.
Чтобы получить ПОДРОБНУЮ ПРЕЗЕНТАЦИЮ С ПЛАНИРОВКОЙ И ФОТОГРАФИЯМИ, звоните или отправьте свой email и номер телефона в сообщении на портале. Высылаем в течение 15 минут по запросу!
? Конт. лицо: Наталья Дмитриевна, доб. 216, ЛОТ №270163
Офис в продажу
- Этаж: 3 из 5
Цена и условия сделки
- Цена: 125 000 000 ₽
- Налог: НДС включён
- Аккаунт: Агент
Площадь
- Помещение: Свободно
- Дата публикации: 15 фев 2021
- Дата обновления: 06 апр 2021
- id объявления: 8352
Информация о здании
- Адрес: 2-й Донской проезд, 10
- Количество этажей: 5
Дополнительная информация





