Скажите, пожалуйста, что Вы с Лиги Квартир
Описание
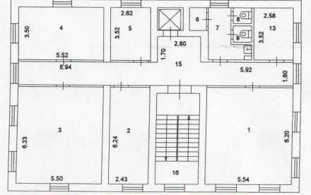
Лот №394741 Предложение от Собственника! Сдается офисный блок общей площадью 180.6 кв.м. кабинетной планировки, на 5 этаже компактного офисного центра, расположенного в 15 мин. пешком от метро Преображенская площадь. В помещении выполнен ремонт, готово к въезду новых арендаторов. Приточно-вытяжная вентиляция, автоматическая пожарная сигнализация, санузлы. Телекоммуникации: телефон, интернет. В здании офисного центра пропускная система, круглосуточная охрана и видеонаблюдение, лифт. На территории есть наземная охраняемая парковка с возможностью арендовать машиноместо. Очень спокойное и тихое место в ВАО г. Москвы вблизи Северо-Восточной хорды.
Стоимость аренды: 8500 руб/м2/год (128209 руб в месяц) включая НДС. В цену включено: коммунальные расходы, эксплуатационные расходы. В цену не включено: затраты на электричество.
Чтобы получить ПОДРОБНУЮ ПРЕЗЕНТАЦИЮ С ПЛАНИРОВКОЙ И ФОТОГРАФИЯМИ, звоните или отправьте свой email и номер телефона в сообщении на портале. Высылаем в течение 15 минут по запросу!
? Конт. лицо: Максим Валерьевич, доб. 218, ЛОТ №394741
Офис в аренду
- Этаж: 5 из 7
Цена и условия сделки
- Цена: 128 148 ₽
- Налог: НДС включён
Площадь
- Помещение: Свободно
- Дата публикации: 07 апр 2020
- Дата обновления: 14 сен 2021
- id объявления: 24447
Информация о здании
- Адрес: 1-я Пугачёвская улица, 25
- Количество этажей: 7
Дополнительная информация





