Обновлено: 07 дек 2025
Размещено: 16 ноя 2025Скажите, пожалуйста, что Вы с Лиги Квартир
Описание
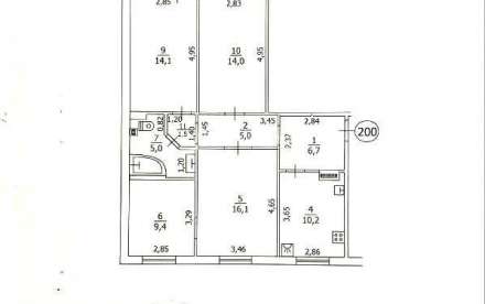
Просторная 4-комнатная квартира с уникальной планировкой, качественным утеплением толстым слоем 100мм и автономным отоплением
Идеальный вариант для семьи: продуманная перепланировка с кабинетом по проекту, высота потолков 2.65, отдельная канализация с обратным клапаном, тёплая и сухая благодаря качественному утеплению со всех сторон.
В квартире выполнена легальная перепланировка. Получены все согласовательные документы, выполнена по проекту, разрешения через заседание исполкома, работы проводила профильная компания. Есть все документы и свежий техпаспорт, внесена в Росреестр.
Все документы готовы к сделке, прописанных нет
КЛЮЧЕВЫЕ ПРЕИМУЩЕСТВА
• Благодаря перепланировке получилась большая ванная комната, которых нет в подобных квартирах, а также огромная прихожая, тут поместится все, еще и место останется
• Автономное отопление. Французский котёл — самый надёжный вариант, ни разу не ломался (проверено).
• Полное утепление дорогими материалами снаружи + экструдированный пенополистирол в подвале. Наружное утепление сделано толщиной 100мм
• Своя отдельная канализация с обратным клапаном — исключён обратный ход стоков, любая авария в канализации не страшна квартире
• Немецкие окна VEKA с топовой фурнитурой: проветривание/частичное/микро, открываются обе створки на каждом окне – это комфорт и простота уборки
• Очень высокий цоколь — никто не заглядывает в окна, комфорт первого этажа на 100%.
• В подъезде общий тамбур на 2 квартиры, с местом для размещения: удобно для коляски/велосипеда. Благодаря тамбуру в квартире совершенно не слышно лифт
• Входные двери — топовый премиум-уровень, приятный звук надежности.
• Грамотно установленные надёжные решётки.
• Полностью завершенный ремонт в ванной «под себя»: полная гидроизоляция, тёплый пол, фильтры. Гидромассажная ванна Ravak (Чехия) с подсветкой, аудио и пультом.
ПЛАНИРОВКА, КОТОРОЙ НЕТ У СОСЕДЕЙ
• Большая прихожая: даже со шкафом остаётся много свободного места по ширине и по длине — уникально для города
• Широкий коридор — заметно просторнее типовых.
• Большая кухня 10.2 м2 (по меркам «мирных» кварталов — редкость).
• Большая объединённая лоджия (при желании можно разделить на две).
ОКРЕСТНОСТИ
• Очень тихое место, особенно спальни: окна можно держать открытыми — весной пахнет цветущими абрикосами, летом — зеленью. Дорога отделена зелёной зоной — она «съедает» шум.
• Уютный и тихий непроходной двор. Через наш двор не ведут дороги к другим дворам или объектам
• Рядом гаражный кооператив — прежде были варианты покупки боксов (возможность актуальна для тех, кому нужен гараж поблизости).
• Асфальтированная парковка во дворе больше, чем в других дворах района
• Рядом есть все, идеальное место для жизни!
ИДЕЯ ДЛЯ МОДЕРНИЗАЦИИ (ПО ЖЕЛАНИЮ)
• Можно смело демонтировать перегородки между залом и коридором — получится большая современная гостиная.
• Перегородки тонкие, первый этаж позволяет даже перенести мойку в любую точку: пространство подвала это допускает.
Обзор: https://vkvideo.ru/video19422548_1448793
3-комнатная квартира в продажу
- Количество комнат: 3
- Комнаты: Смежные
- Этаж: 1 из 10
- Тип объекта: Квартира
- Ремонт: Без ремонта
- Санузел: Совмещенный
- Балкон/Лоджия: 2
Цена и условия сделки
- Цена: 7 800 000 ₽
- Цена за м²: 88 135 ₽
- Торг: да
- Тип продажи: Свободная продажа
- Лет в собственности: Больше пяти
- Собственников: 2
- Аккаунт: Собственник
Площадь
- Общая площадь: 88.5 м²
- Жилая площадь: 53.6 м²
- Площадь кухни: 10.2 м²
- Высота потолков: 2.65 м
- Дата публикации: 16 ноя 2025
- Дата обновления: 07 дек 2025
- id объявления: 39990
Информация о доме
- Тип жилья: Вторичка
- Адрес: улица Победоносная, 21
- Тип здания: Панельный
- Количество этажей: 10
- В доме есть: газ / аогв
Дополнительная информация
- Вид из окон: Двор / Улица
- Парковка: Во дворе
- Безопасность: Домофон
- Благоустройство двора: Детская площадка
- Инфраструктура: Школа / Детский сад / Фитнес / Торговый центр / Магазин






