Скажите, пожалуйста, что Вы с Лиги Квартир
Описание
Жилой комплекс расположен в активно развивающейся части города Ханты-Мансийска. Квартиры комфорт-класса с чистовой отделкой от надежного застройщика.
Развитая инфраструктура, выгодное расположение набережная реки Иртыш, Ледовый дворец (крытый каток, аквапарк, бассейн), горнолыжный спуск, биатлонный центр, детские площадки, уличные тренажеры.
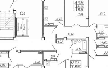
Квартира 3-я с ремонтом под ключ: площадь кухни 14,67 м?; комната 17,93 м?; комната 15,40 м?; комната 14,61 м?; высота потолков 2,70 м; санузел раздельный (туалет 1,78 м?, ванная 3,35 м?); балкон 4,68 м?; прихожая 13,26 м?.
Чистовая отделка включает в себя: обои на стенах, линолеум на полу, установлены межкомнатные двери и индивидуальные приборы учета света, тепла, воды, домофон; в кухне установлена электрическая плита и раковина; в сан. узле установлен унитаз, раковина и ванна, материал окон – пластиковые 5-ти камерные.
В подъезде имеется грузопассажирский лифт.
Окончание строительства II квартал 2021 г.
Расчет: наличные, ипотека, мат/капитал, субсидии и сертификаты Югры и т.д.
РАССМОТРЕНИЕ ИПОТЕКИ, ПРОСМОТР И УСЛУГИ ОФОРМЛЕНИЯ – БЕСПЛАТНО!
3-комнатная квартира в продажу
- Количество комнат: 3
- Этаж: 8 из 9
- Санузел: Раздельный
- Балкон/Лоджия: 1
Цена и условия сделки
- Цена: 7 190 400 ₽
- Цена за м²: 84 000 ₽
- Ипотека: да
- Аккаунт: Агент
Площадь
- Общая площадь: 85.6 м²
- Жилая площадь: 47.9 м²
- Площадь кухни: 14.7 м²
- Дата публикации: 09 мар 2021
- Дата обновления: 27 авг 2021
- id объявления: 9898
Информация о доме
- Адрес: Анны Коньковой улица, 16
- Тип здания: Монолитный
- Год постройки: 2021
- Количество этажей: 9
Дополнительная информация

