Обновлено: 20 янв 2025
Размещено: 20 янв 2025Скажите, пожалуйста, что Вы с Лиги Квартир
Описание
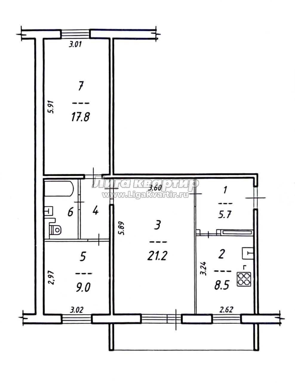
Реальному покупателю торг. Есть возможность оформить ипотеку Сбербанка под ставку 11.9% на эту квартиру. В продаже трёхкомнатная квартира общей площадью 69.4 кв. м. с раздельными комнатами. Возможен торг. Перепланировка официально согласована, получен новый кадастровый паспорт, с новой планировкой, актуальная планировка отражена в объявлении. Квартира расположена на первом этаже девятиэтажного панельного дома по адресу: г. Череповец, ул. Ленинградская, д. 50, прямо за домом расположен новый красивый современный детский сад "Калейдоскоп", через дорогу идёт строительство новой общеобразовательной школы. Квартира очень тёплая, зимой собственники иногда перекрывают батареи, потому что в квартире очень тепло. Подача воды в доме осуществляется снизу вверх, поэтому в квартире всегда хороший напор воды и утром и вечером. Удобная и практичная планировка квартиры - все комнаты в квартире раздельные: зал 21 кв. м. и две отдельные спальни 17.8 и 9 кв. м. Вместительная кухня 8.5 кв. м. В квартире имеется шестиметровая лоджия, остекление выполнено стеклопакетами, лоджия утеплена и обшита плитой ОСБИ. На лоджии установлен встроенный шкаф для хранения инструментов или заготовок. Первый этаж очень высокий. В квартире сделан ремонт. Санузел совмещённый, стены и пол в ванной и туалете облицованы кафельной плиткой. Также у квартиры имеется вместительный тамбур с кладовкой, удобный для хранения любых вещей. Соседи очень хорошие, доброжелательные. Квартира подходит для сделок с использованием средств материнского капитала, ипотеки. Вся стоимость в договоре. Прекрасное расположение дома, на второй линии от проезжей части, в шаговой доступности автобусные остановки, продовольственные и промтоварные магазины, аптеки, гипермаркет "Июнь", парк "Серпантин", Аквапарк "Радужный", "Ледовый дворец". Во дворе установлена детская площадка. Звоните и записывайтесь на просмотр.
3-комнатная квартира в продажу
- Количество комнат: 3
- Комнаты: Раздельные
- Этаж: 1 из 10
- Санузел: Раздельный
- Балкон/Лоджия: 1
Цена и условия сделки
- Цена: 5 980 000 ₽
- Цена за м²: 85 428 ₽
- Ипотека: да
- Тип продажи: Альтернатива
- Аккаунт: Агент
Площадь
- Общая площадь: 70 м²
- Жилая площадь: 46 м²
- Площадь кухни: 8.5 м²
- Дата публикации: 20 янв 2025
- Дата обновления: 20 янв 2025
- id объявления: 38544
Информация о доме
- Адрес: ул Ленинградская, 50
- Количество этажей: 10
Дополнительная информация






