Скажите, пожалуйста, что Вы с Лиги Квартир
Описание
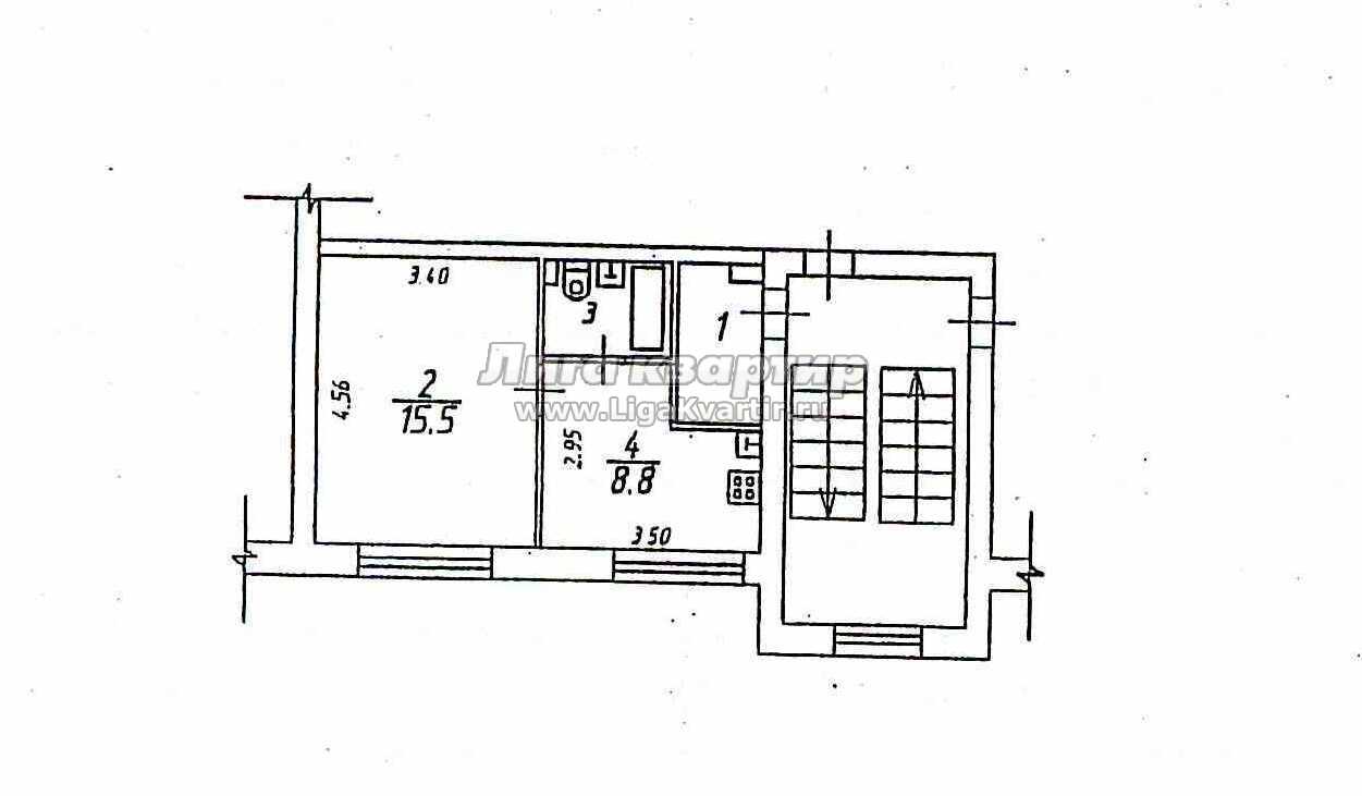
Продаётся однокомнатная квартира.Дом кирпичный,после капитального ремонта.Квартира с хорошим,косметическим ремонтом.Развитая инфраструктура района, в шаговой доступности детские сады,школа,множество торговых центров. До ж/д станции "Кучино" 5 мин. пешком.
1-комнатная квартира в продажу
- Количество комнат: 1
- Этаж: 2 из 4
- Санузел: Совмещенный
Цена и условия сделки
- Цена: 4 400 000 ₽
- Цена за м²: 144 736 ₽
- Ипотека: да
- Аккаунт: Агент
Площадь
- Общая площадь: 30.4 м²
- Жилая площадь: 15.5 м²
- Площадь кухни: 8.8 м²
- Дата публикации: 20 сен 2021
- Дата обновления: 20 окт 2021
- id объявления: 27796
Информация о доме
- Адрес: Почтовая улица, 4
- Тип здания: Кирпичный
- Количество этажей: 4
Дополнительная информация
Карта
17 000 ₽
в месяц
+7 (936) 004-54-06
показать
1-комнатная Площадь: 35 м2 Этаж: 5/9
ул. Некрасова, 13
на карте
05 мая 2021 в 13:18
12 940 000 ₽
143 777 ₽ / м²
+7 (905) 730-97-10
показать
3-комнатная Площадь: 90 м2 Этаж: 1/27
пр-кт Ленина, 80
на карте
26 апр 2023 в 22:58



